液压站运行时间过长的故障维修处理
2022-05-07 09:37:37
ML SPORTS设备
液压站运行时间过长的故障维修处理
某台机组于4月15日报液压站运行时间过长,后台观察液压站压力示数无变化,液压站正常运行,进行手动偏航压力示数依旧无变化,开具工作票后进行登机检查。
1、登机检查发现液压站油位计在低位,而后台未报液压站液位低故障,检查信号反馈正常,进行重新更换液压站油位计后,恢复正常。

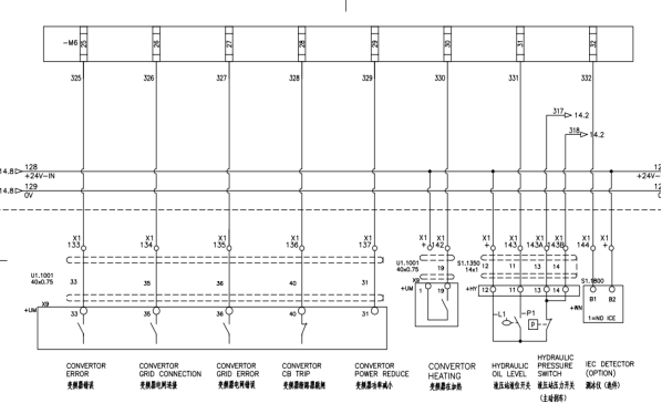
从图中可以看出液压站液位反馈至M6模块的331接线。
2、液压站重新进行运行状态,系统压力上不去,检查液压站截止阀7.1已处于关闭状态,进行更换偏航(解缆)ERQ-300电磁阀后状态未变化,可以排除不是偏航ERQ-300电磁阀原因导致压力上不去。

进一步检查液压站电机及联轴节均未发现异常,最终检查发现为液压站机械泵损坏导致压力上不去问题。
现象:液压站正常运行,压力示数无变化(打不上压)
解决方法:①检查截止阀7.1是否处于闭合状态
②检查解缆ERQ-300电磁阀9.7是否存在卡涩现象
③使偏航ERQ-300电磁阀得电,查看压力是否上去,若可以打压,则判定液压站电机及油泵无问题;若无则判定液压站电机或机械泵存在问题。
TAG:
液压站